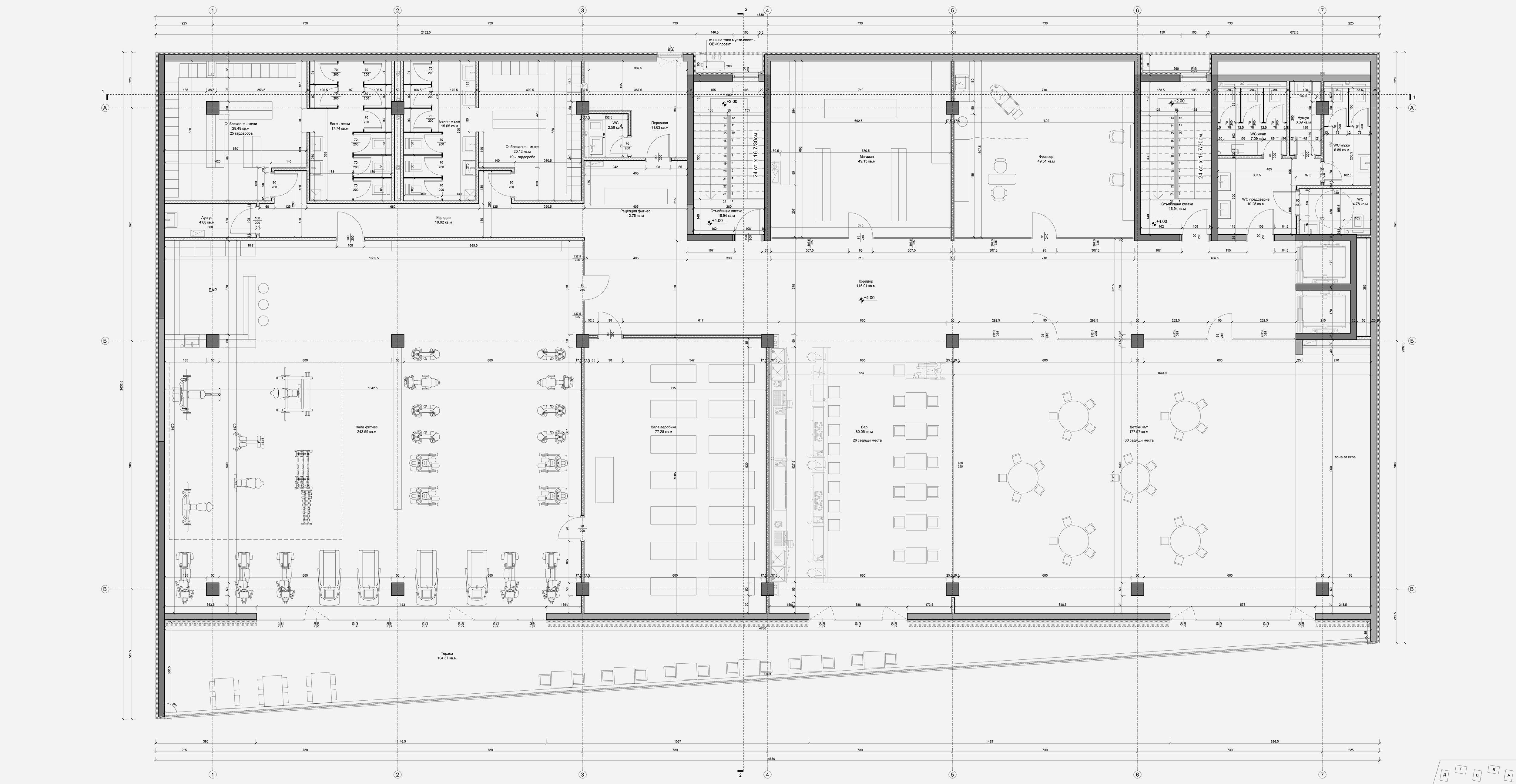
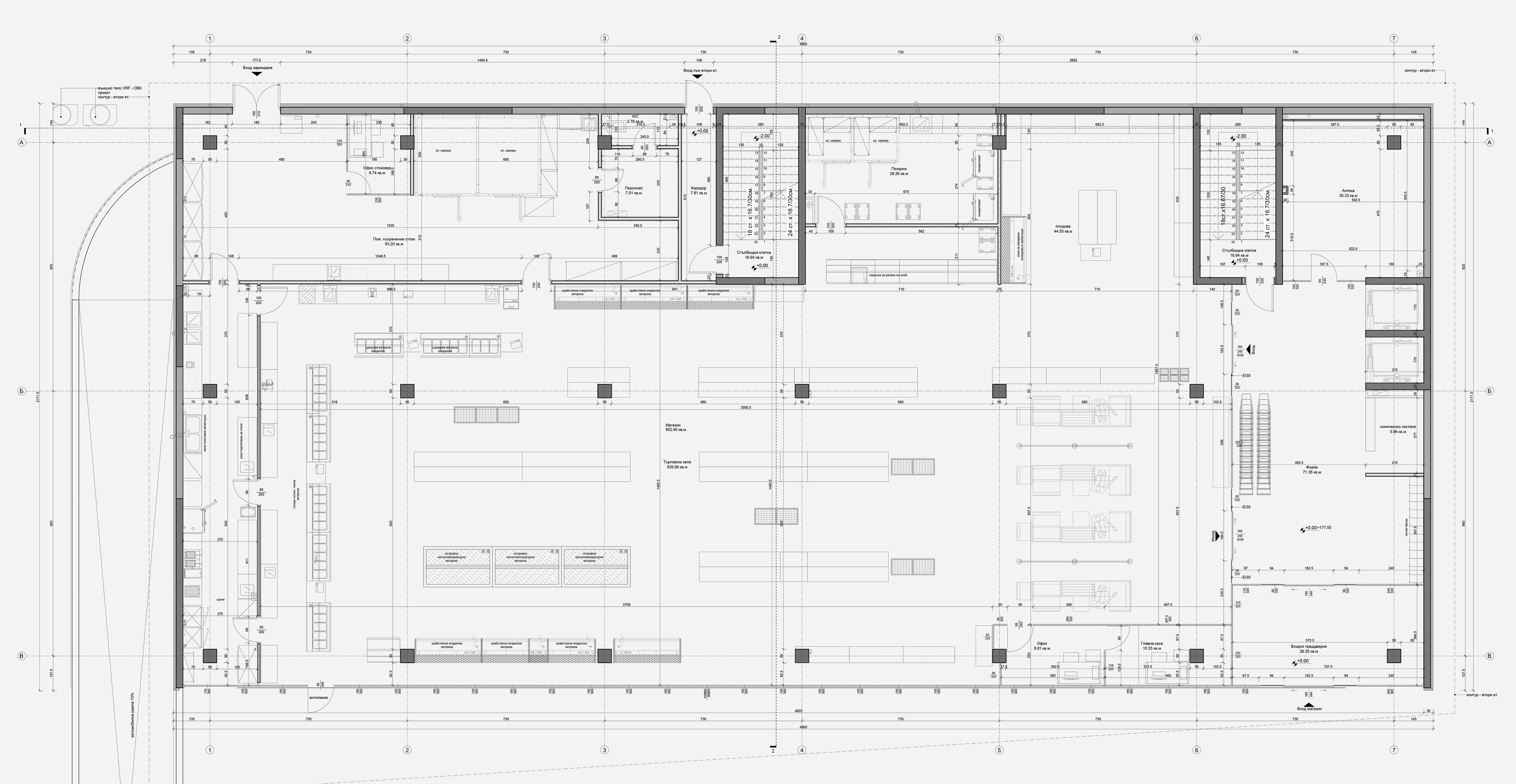
Търговски Комплекс

Търговският комплекс заема почти цялото лице на имота откъм основната пътна артерия. Предназначен е да подсигури всички нужди на обитаващите.

Разположението и формата на сградата я превръщат в идеален шумоизолиращ екран между главния път и жилищата.

За Ваше удобство са осигурени 31 надземни паркоместа, прилежащи към сградата.

ТЪРГОВСКИ К-С

Ситуационен План

Подземен Етаж

Етаж 1

Етаж 2